Appartement
Sète (34200)
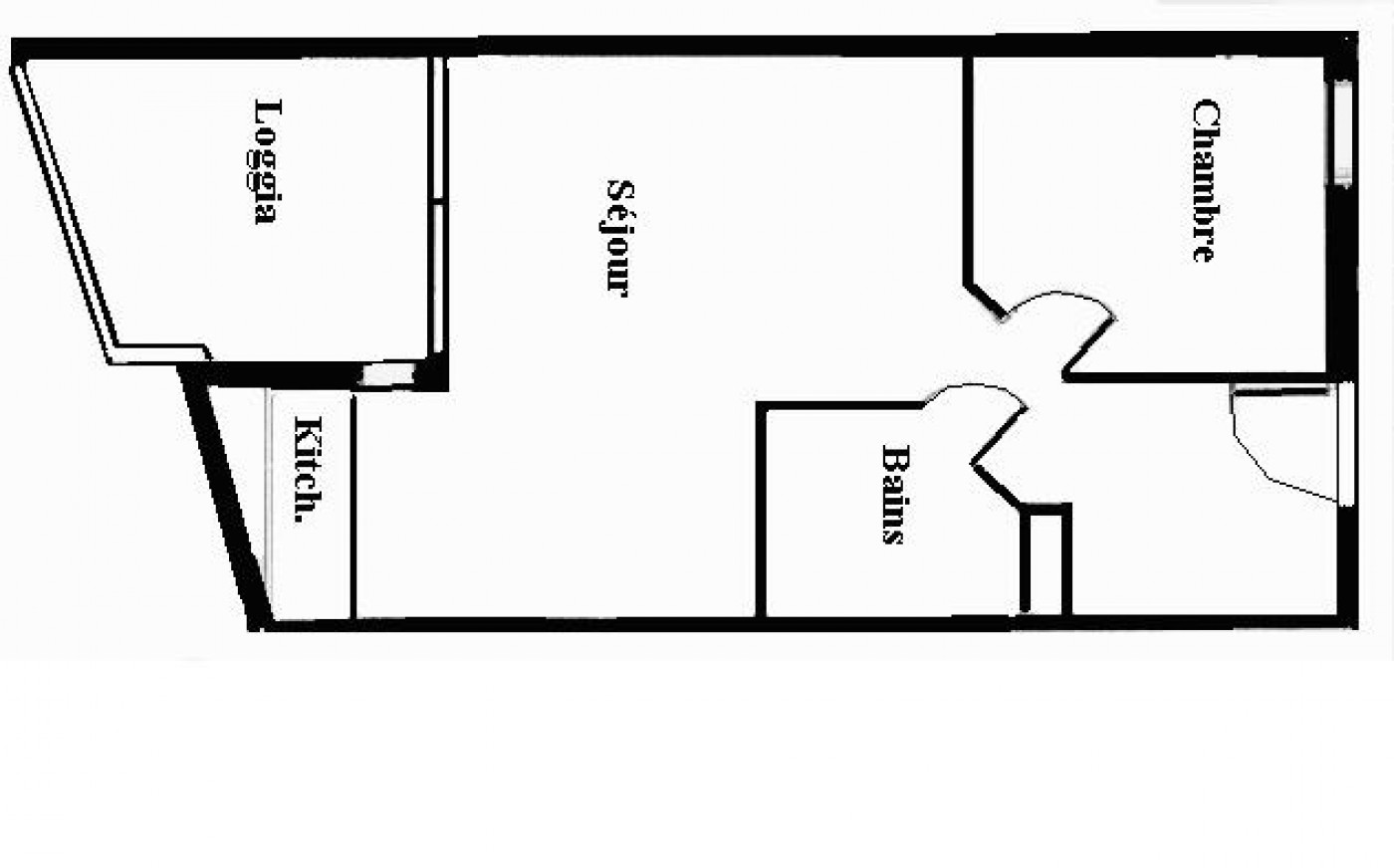
- Surface 30 m²
 - Pièce(s) 2 pièce(s)
 - Chambre(s) 1 chambre(s)
 - Terrain NC
 
Location vacances à Sète : Confortable deux pièces de 30 m2 habitable avec une belle terrasse de 6 m2, offrant une sublime vue mer. L'appartement est situé au 2ème étage (sans ascenseur.) Les plages sont en face la résidence à 50 m. Les commerces sont à 500m. Particulièrement bien équipé et joliment rénové, cet appartement dispose d'un canapé-lit d'angle à 2 places dans le séjour, d'une télévision et d'un coin cuisine (avec 2 plaques inductions, frigo-congélateur, four micro-onde, lave-linge et lave vaisselle). Dans la chambre, on trouve un lit pour 2 personnes et une commode. A l'entrée rangement et penderie. La résidence est très agréable et arborée. Un emplacement de parking est prévu pour cet appartement au N°60, fermeture par un portail électrique. Accès Internet. Animaux non admis. Arrivée tardive possible : 50€ (détails nous consulter.)
Services OPTIONNELS selon disponibilité : location linge de lit (15€ par lit), location serviettes (12€ par personne), nettoyage fin de séjour (hors cuisine) 60€, mini box wifi (39€/semaine). NON INCLUS : papier toilette, produits ménager, produits de toilette.
A régler à l'arrivée, taxe de séjour (5,5% du prix du séjour) et dépôt de garantie (300€) par carte.
N° d'enregistrement en mairie : 3430100047740
Les informations sur les risques auxquels ce bien est exposé sont disponibles sur le site Géorisques.
Cette location vacances est :
- à 50m de la plage de la Corniche
- 3,3Km du centre ville de Sète et du port de pêche
- 5Km de la gare SNCF (TGV)
- 950m du centre balnéaire
- Parking public gratuit proche
- arrêt de bus « LES PRES CALARD » à 150m.
- Borne de recharge pour voiture électrique à 400m.
- Lidl à 1.5Km
- Auchan à 2.3Km
Un quartier dynamique avec boulangerie, presse, superette, restaurants, coiffeur, pharmacie.
Activités à proximité : baignade, pédalo, kayak, location bateaux, rosalie, voile, plongée, kitesurf, parc de jeux pour enfants, skate-park, pumptrack, tennis, centre équestre, profitez de 45km de pistes cyclables, et de la longue plage de sable fin de 12Km avec ses paillottes.
Restaurant - bar de plage 'La Praïa' et ses transats en face de la résidence. 
SETE est « LABELLISE FAMILLE PLUS » (des animations adaptées à tous les âges) et « PAVILLON BLEU ».
Demandez notre guide de « BIENVENUE A SETE »
Notre barème d'honoraires
	
	

































































